Net-zero-ready in Ottawa
A thoughtful transformation of a well-built mid-century home into a future-proof, accessible, and energy-efficient sanctuary.
| Building Type | Single-Family Bungalow (incl. 1.5 Story) | Location | Ottawa, ON |
| Year Built | 1954 | Foundation Type | Concrete (Full Basement) |
| Structure Type | Wood-Framed | Post-Retrofit Total Floor Area | 411.5m2 |
| Climate Zone | 5 | Heating Degree Days | 4440 |
| Retrofit Status | Complete | Year Completed | 2023 |
| Retrofit Phasing | No | Geometry Changed | No |
| Annual Energy Savings | 73.91% | Operational Carbon Savings | 11.06 tCO2eq/yt |
| Retrofit Type | Envelope and Mechanical | Performance Level | Net-Zero Ready |
Project Team
- Lagois ( Builder )
- Jeff Hurdis ( Designer or Architect )
- Efficient Home Design and Solutions ( Mechanical Design )
- Homesol Building Solutions ( Energy Advisor )
Project Priorities
- Reduce Energy Consumption
- Increase Thermal Comfort
- Reduce GHG Emissions
Project Goals
The retrofit was driven by a set of thoughtful and personal goals that prioritized long-term livability, comfort, and sustainability. At the heart of the project was the concept of living in place, which is, designing a home that could adapt to any future physical needs through features like wider hallways, doors, and reduced pinch points for accessibility. Equally important was achieving consistent comfort, addressing the original home’s uneven heating and drafty conditions by upgrading mechanical systems and improving thermal performance. While net zero was not the initial target, the homeowner, motivated by a desire to reduce reliance on fossil fuels pursued electrification and greenhouse gas reduction as a natural extension of the retrofit. As the project evolved, new priorities emerged, including a commitment to holistic design thinking, where every detail and transition point in the building envelope was carefully considered, even within interior load-bearing walls. Ultimately, the retrofit became a way for the homeowner to invest in their future, creating a resilient, adaptable, and energy-conscious home.
Upgrades
- Air-source heat pump (Heating and Cooling)
- Electric Hot Water Heater
- Energy Recovery Ventilator
- Solar Panel (to follow)
- Aerobarrier
Project Description
Planning the Retrofit
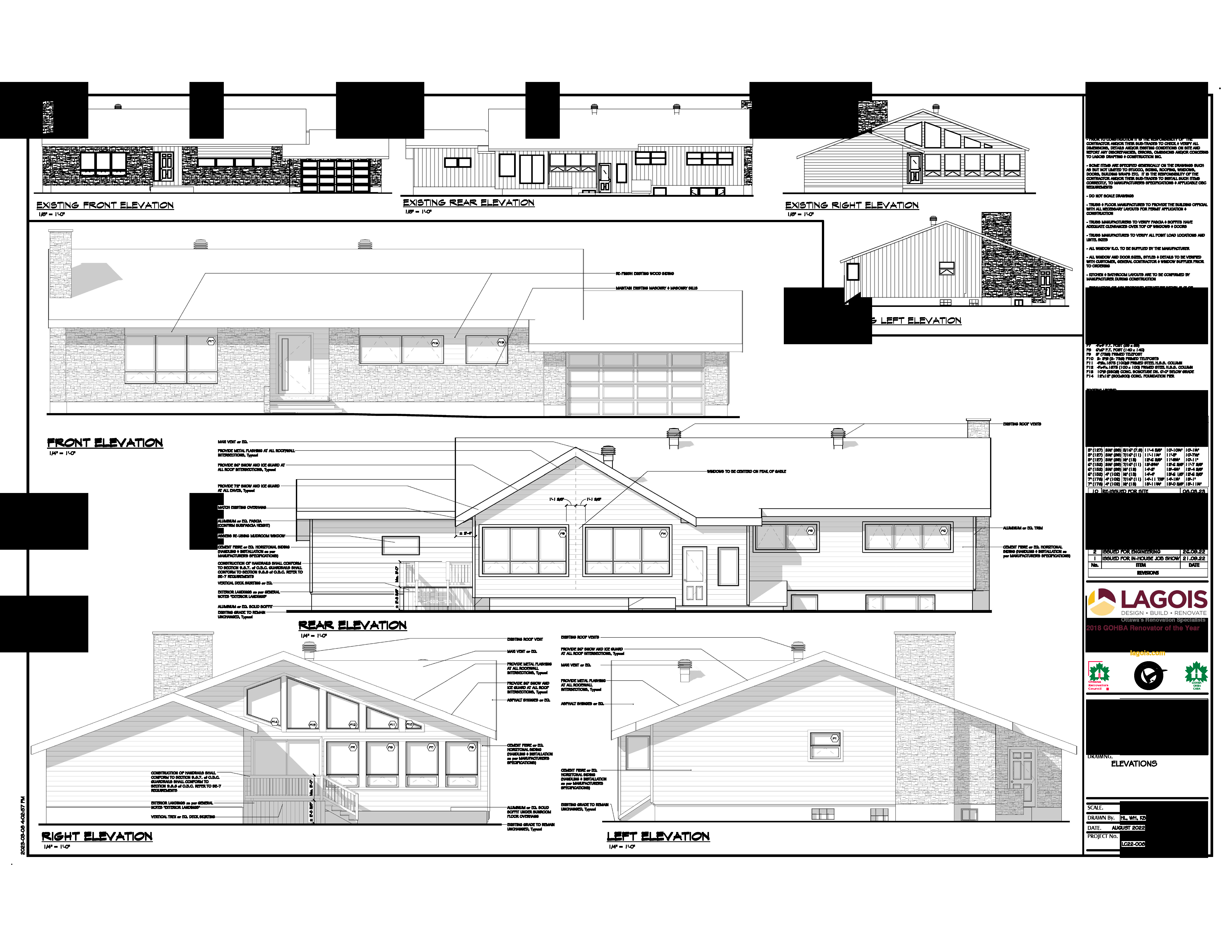
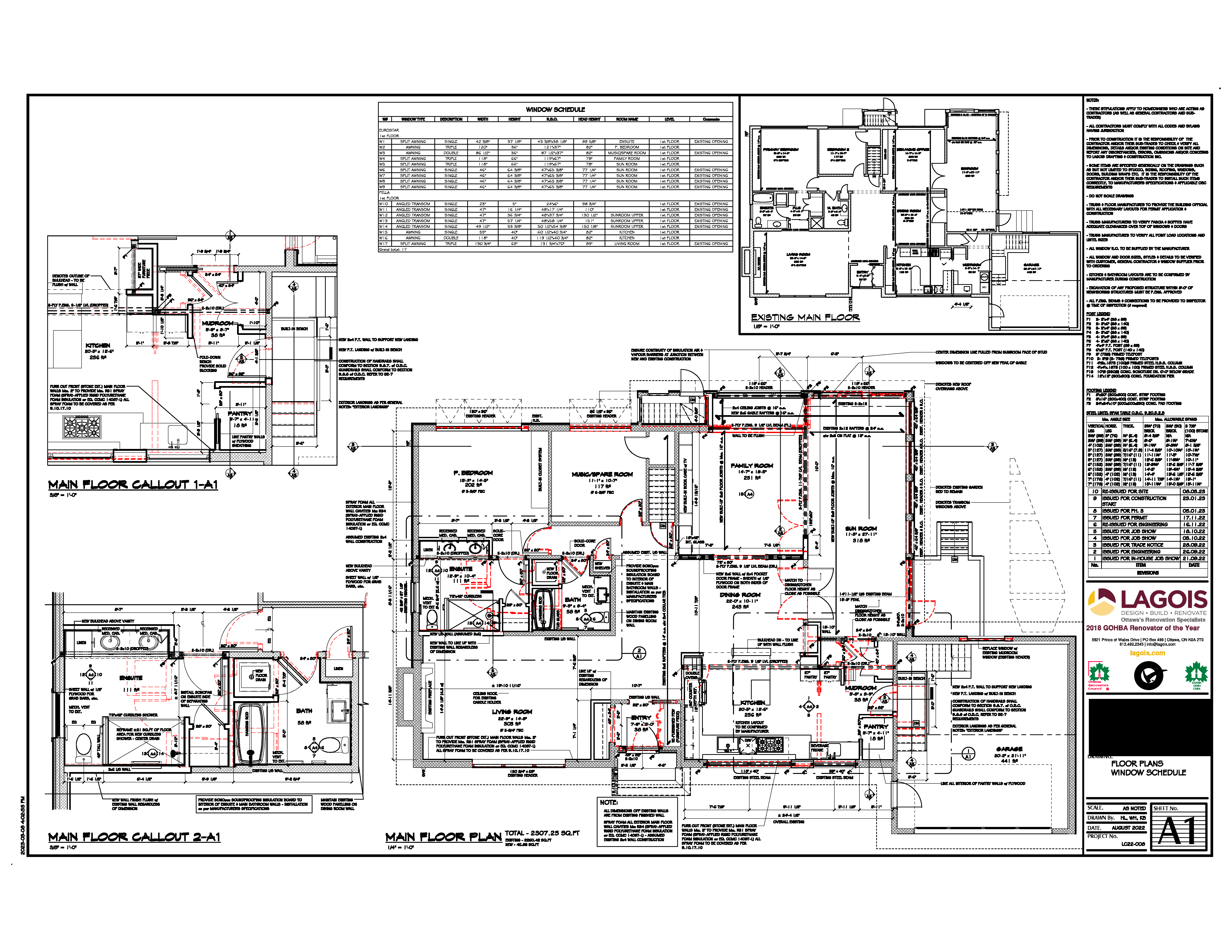
The retrofit project was not originally intended to achieve net zero energy performance. However, as the design and construction progressed, the homeowner made significant personal investments, including enhancements to the basement that were not part of the initial plan. The scope of the project expanded to include every exterior component of the home, which naturally led to deeper considerations around energy efficiency. Central to the retrofit were themes of accessibility and adaptability, driven by the understanding that life circumstances can change unexpectedly, and making such modifications later could be both challenging and costly.
Getting to Net Zero
Reaching net zero was not an intentional goal at the outset of the project, but it became a natural outcome due to the comprehensive nature of the retrofit. By addressing every wall and exterior component, the project inherently improved the home’s energy performance. A key step in this transformation was the shift from natural gas to electric systems, which played a crucial role in reducing greenhouse gas emissions and aligning the energy use of the home with a cleaner electrical grid. Solar Panels are also going to be installed after the retrofit.
Lessons Learned
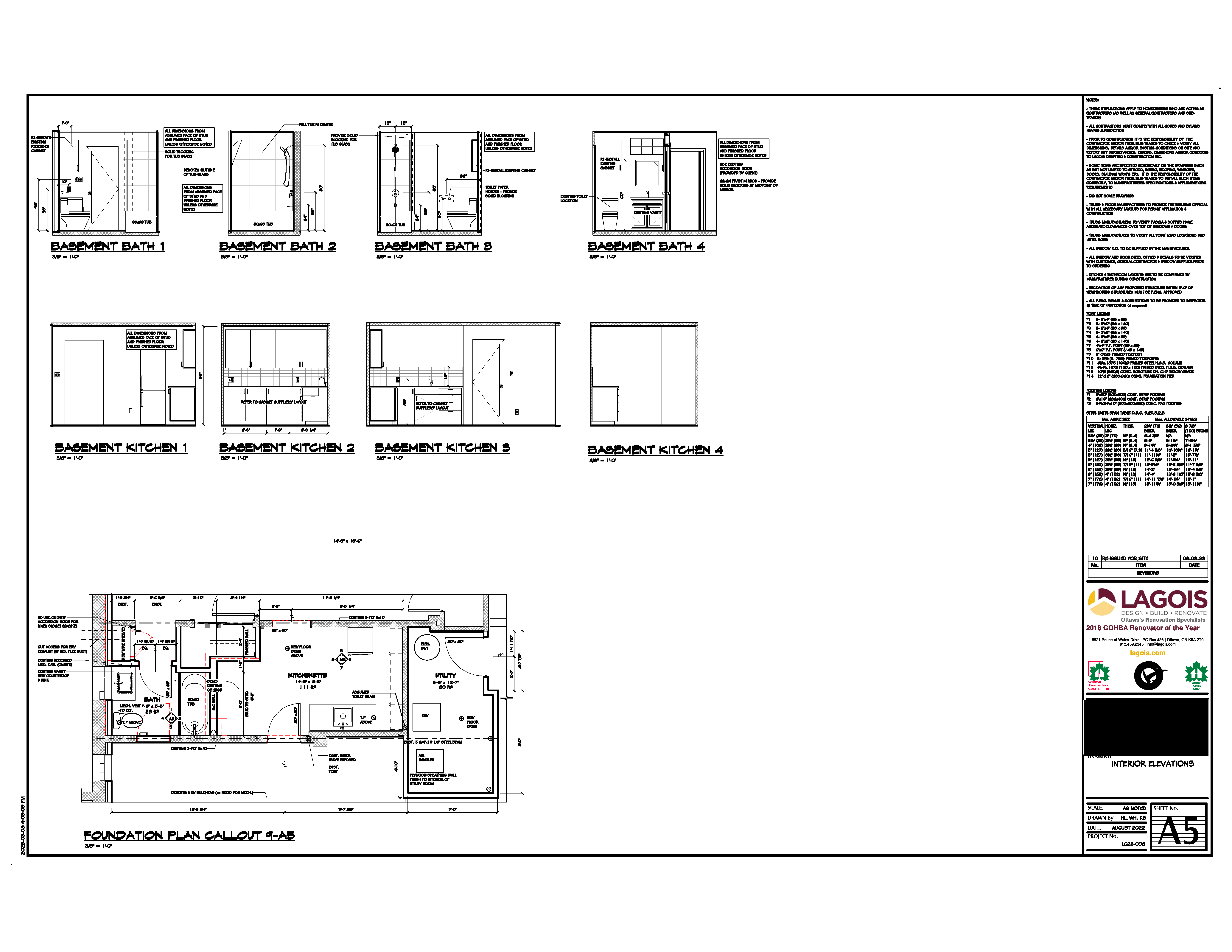
The retrofit process revealed several important lessons. One notable insight came from a section of the house that retained its original Typar air/weather barrier. During air pressure testing, the barrier began to billow, clearly indicating air leakage and highlighting the limitations of relying on existing materials. This led to a deeper understanding of air barrier strategy, prompting the team to move away from patching weak spots and instead adopt ZIP panels and continuous insulation to create a more effective building envelope. Another key learning involved the mechanical system design: the original forced-air system struggled to meet demand, whereas the post-retrofit system now maintains consistent comfort without the need for manual adjustments. Additionally, the team recognized the critical importance of air barrier continuity at transition points. They discovered that airtightness and thermal performance depend not only on the connections between exterior and interior walls but also on interior load-bearing walls that intersect with the air barrier system and areas that are often overlooked but essential for maintaining envelope integrity.
Before & After
General |
Envelope |
Mechanical & Electrical |
Annual Energy Usage |
Carbon Emissions* |