Kamouraska Retrofit – need to change
This renovation focused on creating more space, comfort, and fresh air, all completed on budget.
| Building Type | Single-Family Split-Level | Location | Saint-André-de-Kamouraska, QC |
| Year Built | 1972 | Foundation Type | Concrete (Full Basement) |
| Structure Type | Wood-Framed | Post-Retrofit Total Floor Area | 126.7m2 |
| Climate Zone | 4 | Heating Degree Days | 4200 |
| Retrofit Status | In Progress | Retrofit Phasing | Yes |
| Geometry Changed | Yes | Annual Energy Savings | 16.99% |
| Operational Carbon Savings | 0.01 tCO2eq/yt |
Project Team
- Rodrigue
- Soulèvement Jacques Lavoie ( Contractor (House Mover) )
- 475 Building Supply
Project Priorities
- Increase Thermal Comfort
- Improve Indoor Air Quality
Project Goals
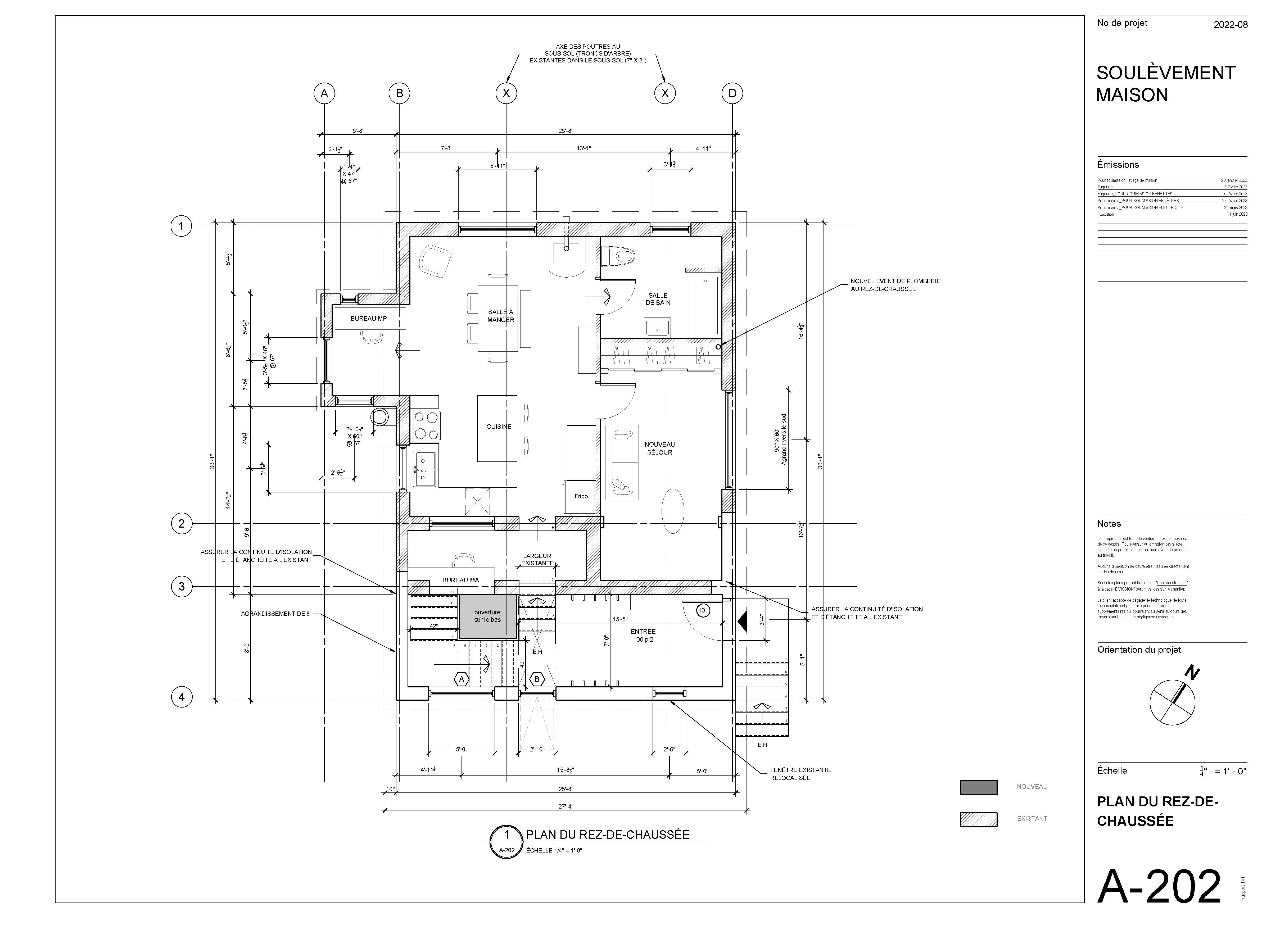
Increased the size of the house from 1 bedroom to 3 bedrooms
Upgrades
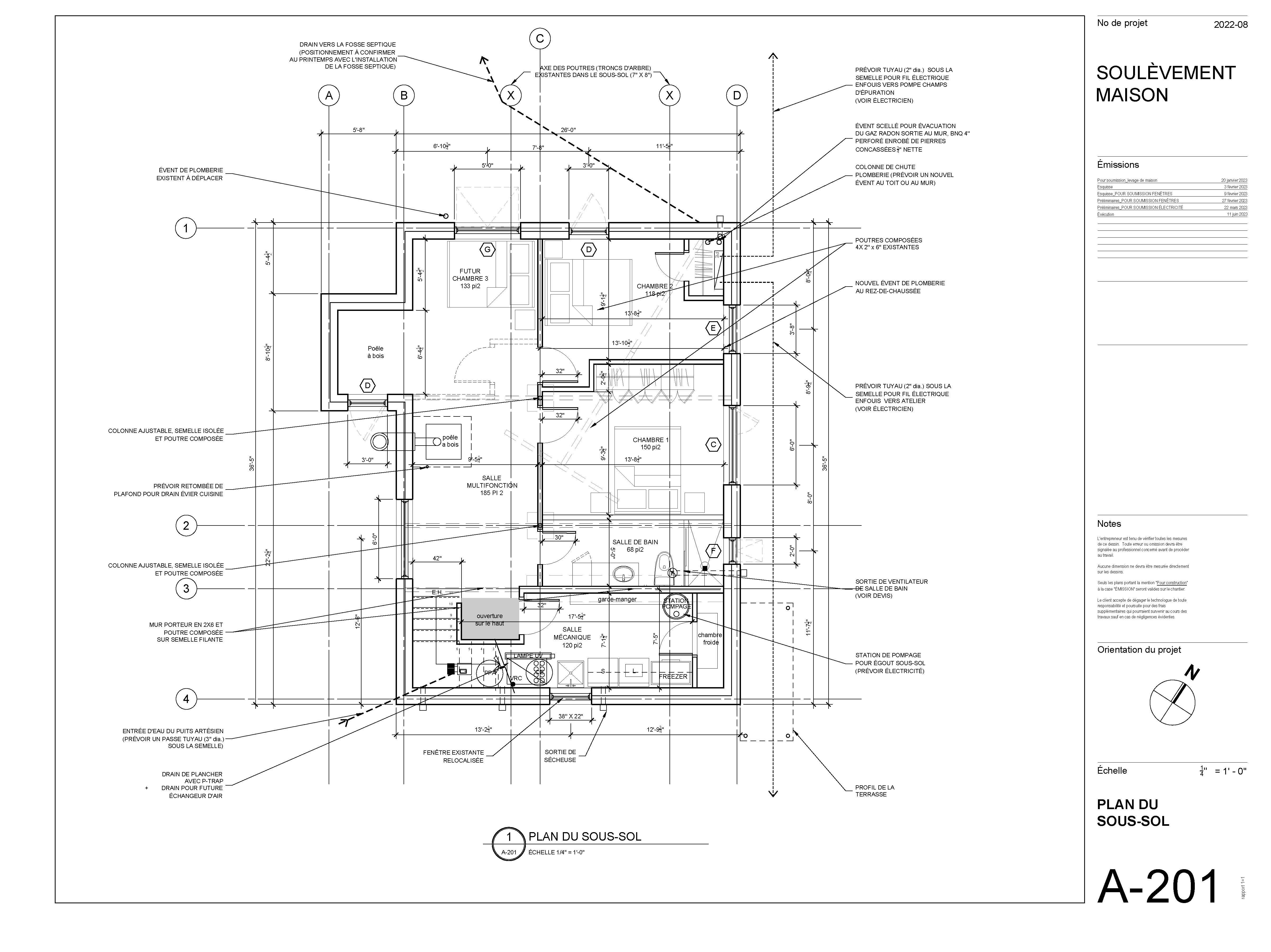
- New Foundation
- New Foundation Insulation (slab and walls)
- Exterior Continuous Insulation (EPS)
- New Windows (Triple pane and Double)
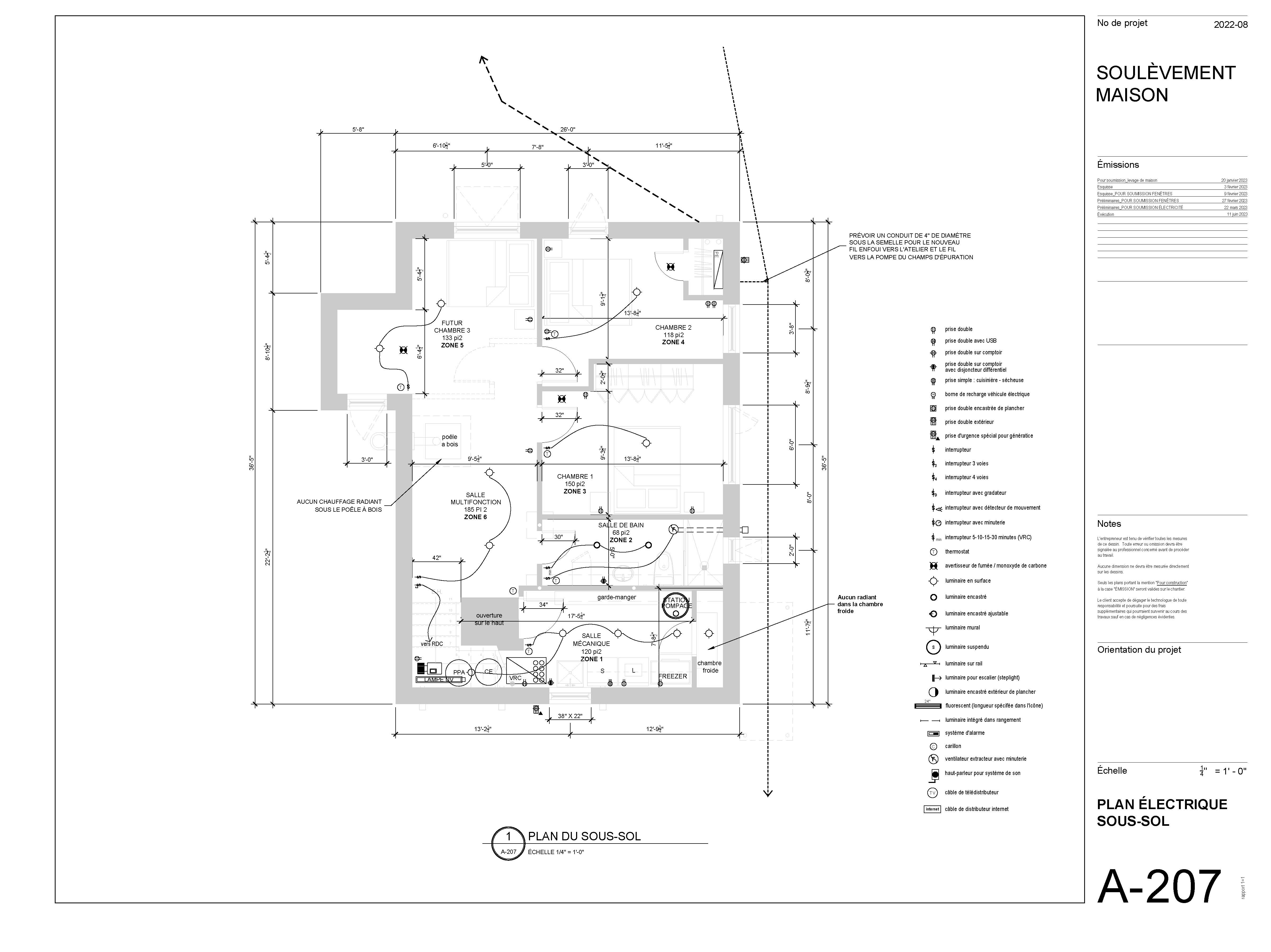
- Radon Mitigation (pipe and fan)
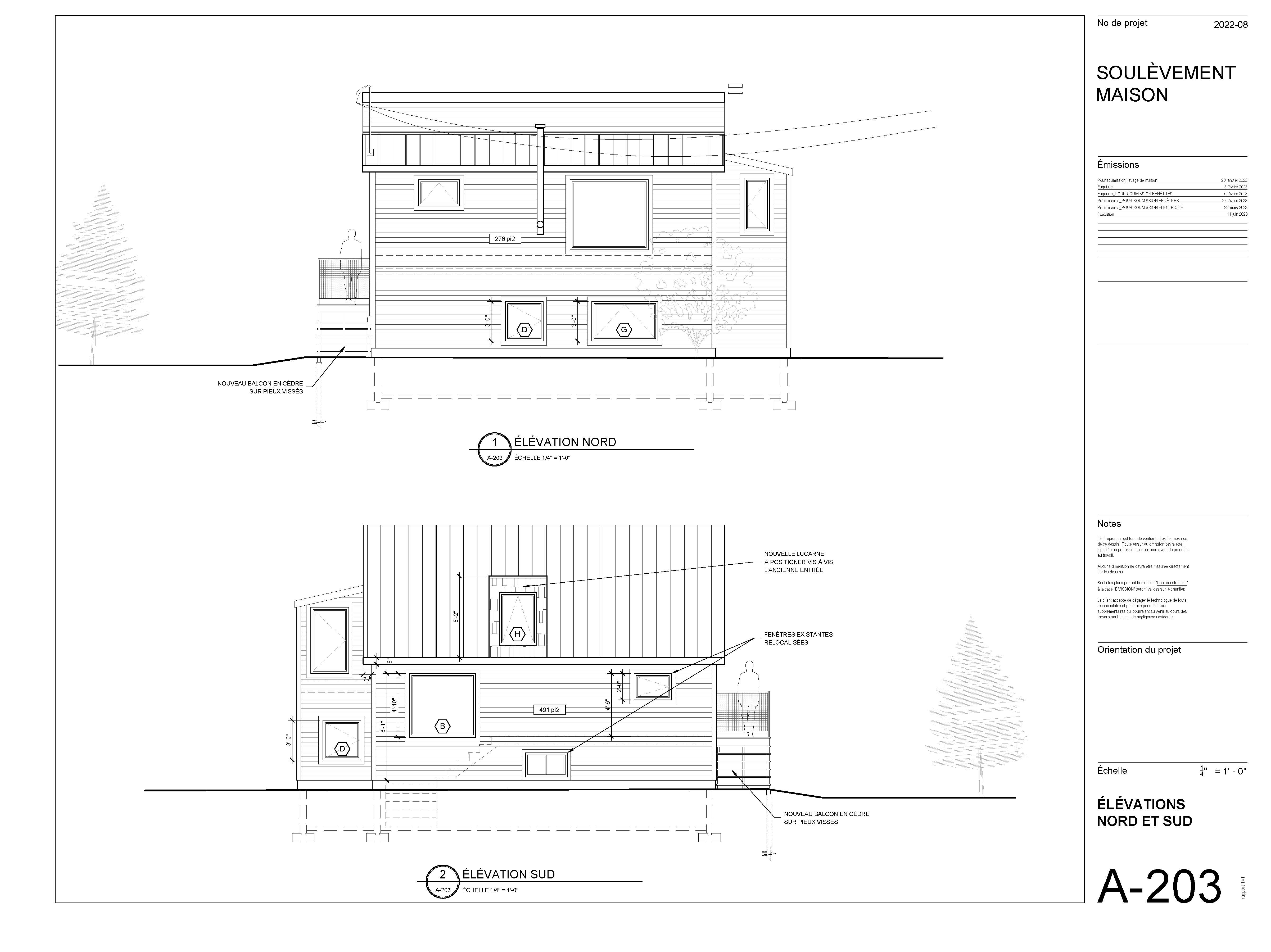
- New Siding (Eastern Cedar, natural cedar from local mill)
- Added ERV and Ducting
- Brackets for Future Outside Deck. Thermal Bridge Free
- Smart Vapour Barrier
Project Description
Planning the Retrofit
This project was completed in phases, with much of the work done independently by the homeowner, an architectural technologist. Support was provided by a general contractor, contributing to a hands-on, real-world construction experience. The retrofit was driven by evolving family needs, initially focused on creating additional space, and later expanding to improve indoor air quality and overall comfort.
Getting to Net Zero
While achieving full Net Zero performance remains out of reach for now, the project continues to evolve with plans for further improvements in insulation and airtightness. These upgrades are expected to enhance energy efficiency and contribute to significantly better indoor air quality.
Lessons Learned
Structural Challenges and Solutions
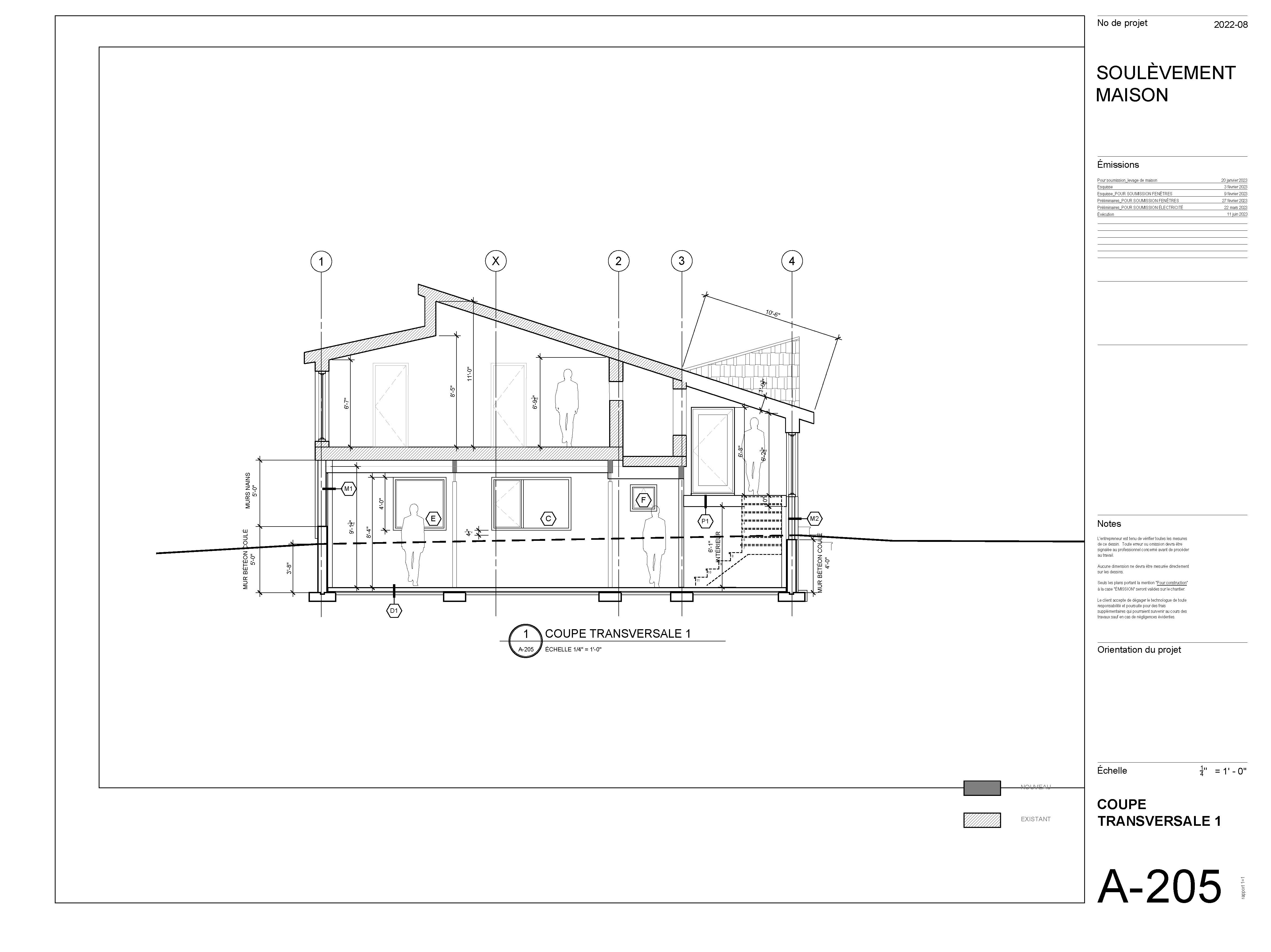
The house originally had significant structural issues, it was noticeably crooked. To address this, a new basement was constructed beneath the existing structure, providing a solid foundation and enabling a full rebuild from the ground up. The approach worked well overall, though radon mitigation proved to be a challenge. The first winter revealed elevated radon levels, but installing a fan resolved the issue effectively.
Budget Management
The project stayed on budget, with a 15% contingency built in, and no additional overruns. Careful planning and execution ensured financial control throughout the retrofit process.
Before & After
General |
Envelope |
Mechanical & Electrical |
Annual Energy Usage |
Carbon Emissions* |